68305 MA-Sandhofen (2/68305/26-08)

















Objektbeschreibung:
Verkauf eines Einfamilienhauses (DHH) nebst Carport in guter und ruhiger Wohnlage von MA-Waldhof.
Das Objekt befindet sich in zweiter Baureihe. Das Grundstück ist nach WEG geteilt. Es besteht ein Miteigentumanteil von 50% an dem 596 m² großen Grundstück, mit einem ca. 100 m² großen Garten.
Das Haus wurde 2020 in massiver Bauweise auf einer Bodenplatte erbaut und überzeugt durch einen durchdachten und bewährten Grundriss. Die Gesamtwohnfläche beträgt ca. 101 m², verteilt auf zwei Etagen.
Im EG befindet sich der sehr geräumige und offen geschnittene Wohn-/Essbereich mit Zugang auf die große, gartenseitige Terrasse, die anschließende offene Küche, ein Gäste WC und ein überaus praktischer Hausanschlußraum/Abstellkammer.
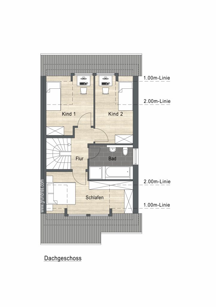
Das 1. OG/DG verfügt über drei Zimmer und das Familienbad.
Ausstattung:
Ebenso überzeugend wie die Aufteilung ist auch die Ausstattung dieses attraktiven Objektes.
Es wurde als Energiesparhaus KfW 55 nach EnEV geplant und gebaut. Es ist mit moderner und kostensparender Haustechnik ausgestattet.
Die Böden im Haus sind mit einem wertigen Vynil in Holzoptik belegt. Das Tageslichtbad und das Gäste WC sind geschmackvoll und zeitlos gefliest. Das Tageslicht-Familienbad verfügt über eine bodengleiche und geräumige Dusche.
Beheizt wird das Haus mit einer Wärmepumpe mit Fußbodenheizung, kombiniert mit einem Lüftungskonzept mit Wärmerückgewinnung und Luftfilter. Diese Wohnraumlüftung sorgt für ein angenehmes Raumklima und konstanter Temperatur. Alle 3-Fach ISO-Fenster sind mit elektrischen Rollläden ausgestattet.
Zusätzlich verfügt dieses attraktive Objekt über eine PV-Anlage mit Stromspeicher, eine Wallbox – um Ihr Auto sicher und bequem zuhause zu laden und einen Brunnen im Garten.
Die großzügige Terrasse ist überdacht und kann mit integrierten Spots stimmungsvoll beleuchtet werden. Von hier haben Sie einen wunderbaren Blick in den schön angelegten, ca. 100 m² großen und sonnigen Garten. Das große Gartenhaus bietet zusätzlichen Stauraum. Der Carport hat einen direkten Zugang zum Garten.
Lage:
MA-Waldhof ist einer der nördlichen Stadteile von Mannheim. Hier befinden befinden sich u. a. ein Hallenbad und das Carl-Benz-Bad (Freibad) im benachbarten Stadteil Gartenstadt. Im angrenzenden Naherholungsgebiet „Käfertaler Wald“ sind viele Möglichkeiten für sportliche Aktivitäten oder anderen Freizeitbeschäftigungen gegeben. Der Stadteil bietet zudem viele attraktive Einkaufsmöglichkeiten, Schulen und Kindergärten.
In die Innenstadt oder zum Hauptbahnhof kommen Sie mit Bus oder Bahn in etwa einer Viertelstunde. MA-Waldhof verfügt über eine Anbindung an die A6 über die Anschlussstelle MA-Sandhofen und über die Bundesstraße 38 zum Autobahnkreuz Viernheim.
Das Objekt selbst befindet sich in einer ruhigen Lage, in zweiter Baureihe. Sämtliche Geschäfte des täglichen Bedarfs, Ärzte und die öffentlichen Verkehrsmittel sind gut zu Fuß erreichen.
Alle Angaben über Abmessungen und Preisangaben beruhen auf Angaben des Verkäufers. Für die Richtigkeit und Vollständigkeit kann keine Haftung übernommen werden.
Das Angebot ist freibleibend und unverbindlich, Irrtum, Zwischenverwertung etc. vorbehalten.
Vereinbaren Sie noch heute einen Besichtigungstermin und lassen Sie sich von dem unschlagbaren Charme, der Qualität und der Ästhetik dieses einmaligen Anwesens überzeugen. Nutzen Sie diese seltene Gelegenheit und machen Sie dieses Haus zu Ihrem neuen Zuhause. Wir freuen uns darauf, Sie willkommen zu heißen und Ihnen dieses wunderschöne Zuhause vorzustellen.
Kurzinfo
| Adresse: | 68305 MA-Waldhof |
| Objektart: | Einfamilienhaus (DHH) nebst Carport |
| Aufteilung: | 4,5 Zimmer, Küche, Tageslichtbad, Gäste WC, Terrasse |
| Gesamtwohnfläche ca.: | 101 m² |
| Gesamtnutzfläche ca.: | nicht unterkellert |
| Grundstücksgröße ca.: | 298 m² |
| Baujahr: | 2020 |
| Objektzustand: | Gepflegt, neuwertig |
| Heizungsart: | Luft-/Wärmepumpe, Fußbodenheizung, Wohnraumlüftung, PV-Anlage mit Pufferspeicher, Wallbox für KFZ |
| Verfügbar: | Juli 2026 |
| Kaufpreis: | € 595.000,– |
| Käuferprovision: | 2,5 % inkl. 19% MWSt. Wir sind in gleicher Höhe für den Verkäufer provisionspflichtig tätig. |
| Objektnummer: | 2/68305/26-08 |
| Energieausweis: | Bedarfsausweis, End-Energiebedarf 14 kWh(m²a), Strom, Baujahr 2020, Energieeffiziensklasse A+ (KFW 55) |